郭某莲、羊某户(地块二)私宅建设变更设计方案批前公示
根据《中华人民共和国城乡规划法》《云南省城乡规划条例》和《临沧市城乡规划公开公示实施办法》,现将临翔区青华社区四组郭某莲、羊某户(地块二)《私宅建设变更设计方案》内容进行批前公示。如有异议,欢迎提出意见建议。
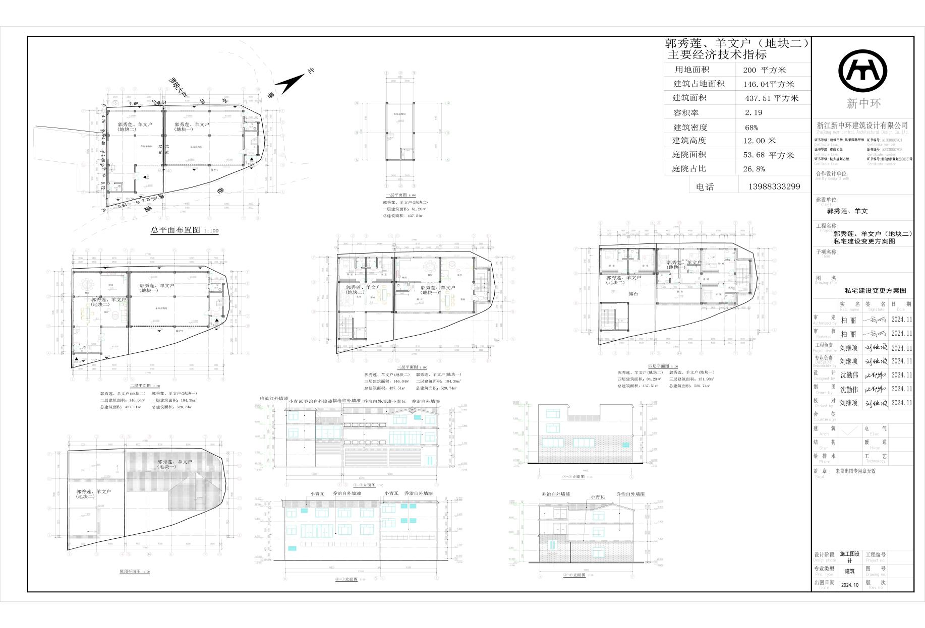
项目名称 | 郭某莲、羊某户地块二私宅建设 |
类型 | 批前公示 |
公示类别 | 建筑设计方案 |
建设单位 | 郭某莲、羊某 |
用地位置 | 位于西环线东面,在建临翔区三中东北面,南汀河滨河西路西面 |
主要经济技术指标 | 用地面积:200㎡,新建建筑面积:437.51㎡,建筑占地面积146.04㎡,建筑密度68%,容积率2.19,庭院占比26.80%,建筑层数:地上1层至地上局部4层 |
公示期限 | 7个工作日(2026年3月20日至2026年3月30日) |
联系电话 | 0883-2153881 |
联系邮箱 | lxqgtkjghbgs@163.com |
说明 | 1.书面反馈(申请)意见发表时间或邮戳日不应超过公示期的最后一天24:00前,逾期视为无效意见。2.书面意见应注明真实联系人姓名、联系方式。3.信件寄往“临沧市临翔区迎宾路113号临沧市临翔区自然资源局(请注明“规划公示”字样)。 |
公示网址 | https://www.ynlx.gov.cn/zfxxgk_lxq_zrzyj/zrzyxx.html |
附件 | 郭某莲、羊某户私宅建设变更设计方案(图纸为公示稿,以最终审核图纸为准) |
