滇西科技师范学院职业教育实训基地学生公寓一期建设项目工程规划设计方案批后公开
项目名称 | 滇西科技师范学院职业教育实训基地学生公寓一期建设项目 |
类型 | 批后公开 |
公示类别 | 建设工程规划许可证 |
发证编号 | 建字第临翔区202600002号 |
建设单位 | 滇西科技师范学院 |
用地位置 | 临沧市临翔区学府路二号 |
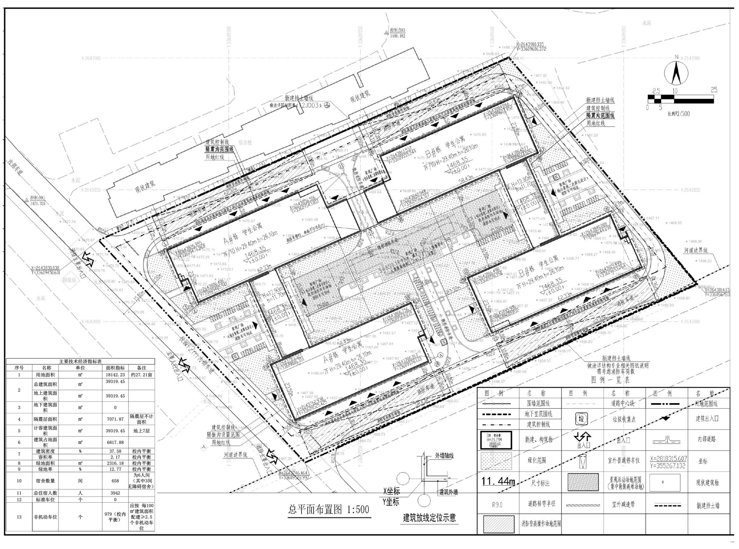
主要经济技术指标 | 用地面积18142.23平方米,新建建筑面积39319.45平方米,容积率2.17(校内平衡),建筑密度37.58%(校内平衡),绿地率12.77%(校内平衡)。 |
公示期限 | 一年(2026年2月14日 至2027年2月13日) |
联系电话 | 0883-2153881 |
联系邮箱 | lxqgtkjghbgs@163.com |
说明 | 1.书面反馈(申请)意见发表时间或邮戳日不应超过公示期的最后一天24:00前,逾期视为无效意见。2.书面意见应注明真实联系人姓名、联系方式。3.信件寄往:临沧市临翔区迎宾路113号临沧市临翔区自然资源局(请注明“规划公示”字样)。 |
公示网址 | https://www.ynlx.gov.cn/zfxxgk_lxq/zrzyxx.html |
附件 | 设计方案公示稿(附项目区位图、总平面图、鸟瞰图、建设工程规划许可证证书。) |




