滇西科技师范学院职业教育实训基地学生公寓一期建设项目工程设计方案批前公示
根据《中华人民共和国城乡规划法》《云南省城乡规划条例》和《临沧市城乡规划公开公示实施办法》,现将滇西科技师范学院职业教育实训基地学生公寓一期建设项目工程设计方案进行批前公示。如有异议,欢迎提出意见建议。
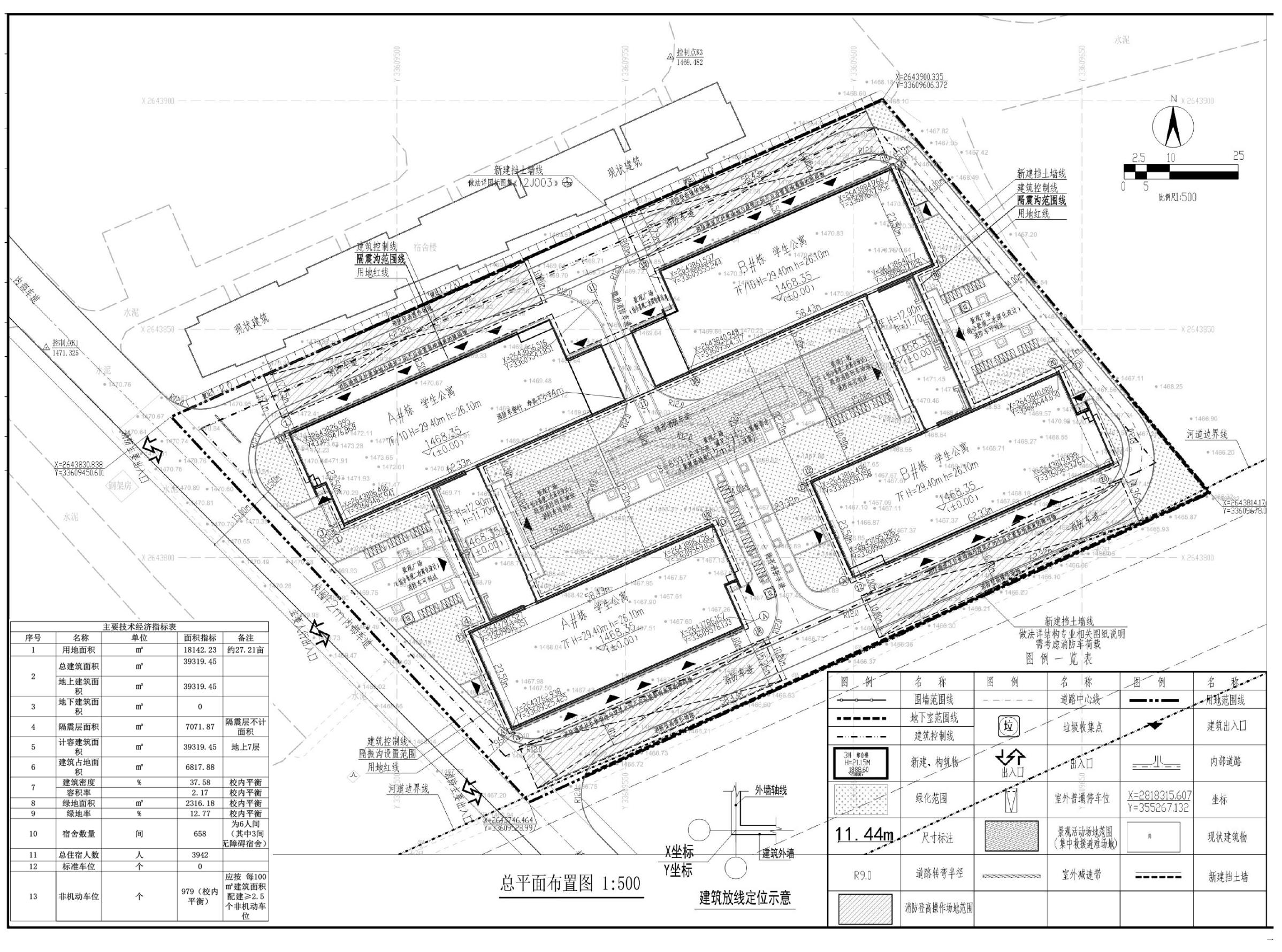
项目名称 | 滇西科技师范学院职业教育实训基地学生公寓一期建设项目 |
类型 | 批前公示 |
公示类别 | 建设工程规划许可证 |
建设单位 | 滇西科技师范学院 |
用地位置 | 临沧市临翔区学府路二号 |
主要经济技术指标 | 用地面积18142.23平方米,新建建筑面积39319.45平方米,容积率2.17(校内平衡),建筑密度37.58%(校内平衡),绿地率12.77%(校内平衡)。 |
公示期限 | 7个工作日(2026年2月05日至2026年2月13日) |
联系电话 | 0883-2153881 |
联系邮箱 | Lxqgtkjghbgs@163.com |
说明 | 1.书面反馈(申请)意见发表时间或邮戳日不应超过公示期的最后一天24:00前,逾期视为无效意见。2.书面意见应注明真实联系人姓名、联系方式。3.信件寄往“临沧市临翔区迎宾路113号临沧市临翔区自然资源局(请注明“规划公示”字样)。 |
公示网址 | https://www.ynlx.gov.cn/zfxxgk_lxq/zrzyxx.html |
附件 | 滇西科技师范学院职业教育实训基地学生公寓一期建设项目工程设计方案总平面图、效果图(图纸为公示稿,以最终审核图纸为准) |


