政府信息公开
临翔区忙角社区黄果园李某兰户《建设工程规划许可证》批前公示
日期:2025-10-23 08:44 来源:区自然资源局 浏览:852次 字体:【

临翔区自然资源局批前公示

根据《中华人民共和国城乡规划法》、《云南省城乡规划条例》和《临沧市城乡规划公开公示实施办法》,现将临翔区忙角社区黄果园李某兰户《建设工程规划许可证》进行批前公示。如有异议,欢迎提出意见建议。

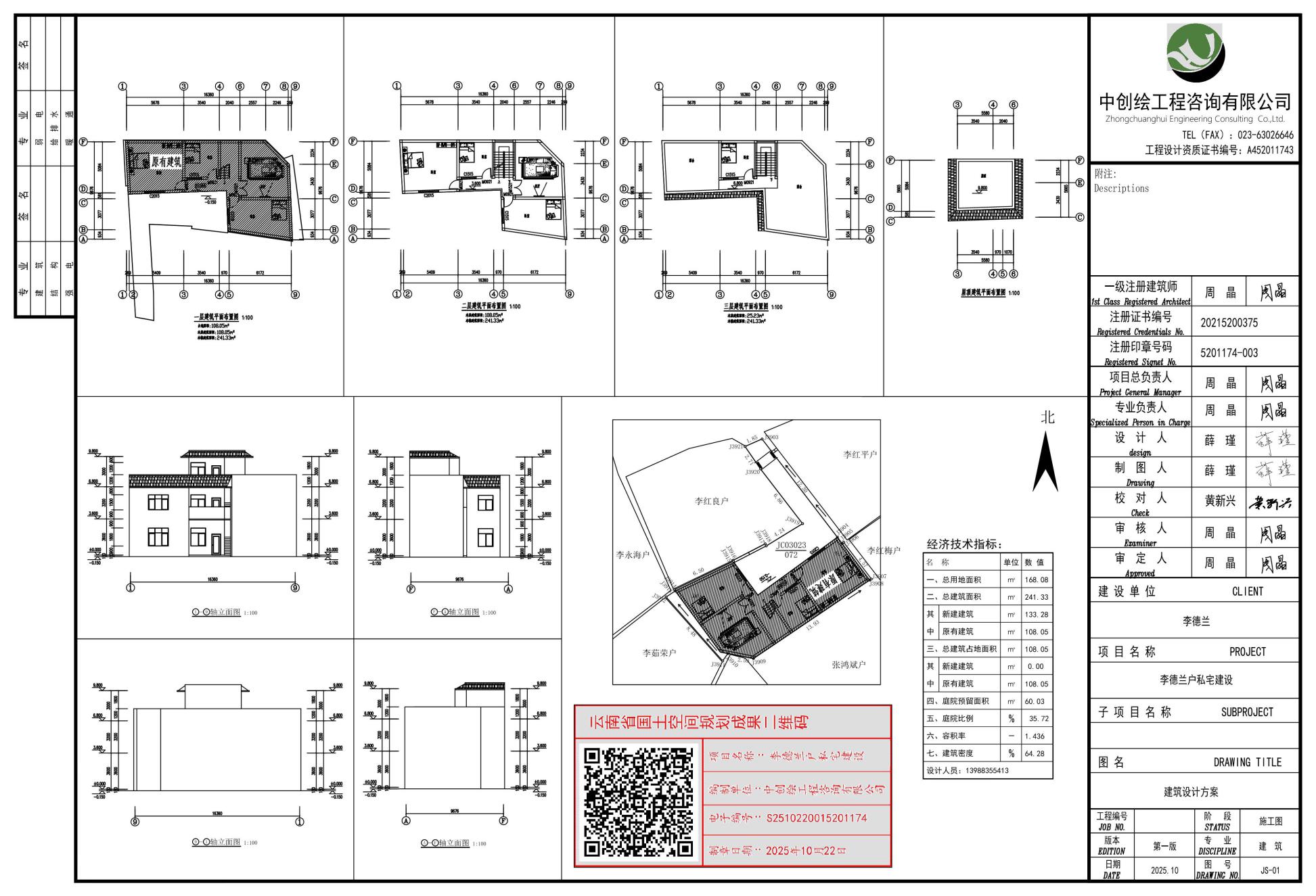
项目名称

李某兰户私宅建设

类型

批前公示

公示类别

建设工程规划许可证

建设单位

李某兰

设计单位

中创绘工程咨询有限公司

用地位置

位于新安路西面,临沧市特殊学校东北面,金桔苑小区一期北面

拟建设规模

总建筑面积:241.33平方米(其中原有108.05平方米,加层增建133.28平方米),总建筑层数为地上1层至地上局部3层

公示期限

7个工作日(2025年10月23日至2025年10月31日)

联系电话

0883-2133529(城乡规划中心)

联系邮箱

Lxzrzycxgh@163.com

说明

1.书面反馈(申请)意见发表时间或邮戳日不应超过公示期的最后一天24:00前,逾期视为无效意见。2.书面意见应注明真实联系人姓名、联系方式。3.信件寄往“临沧市临翔区迎宾路113号临沧市临翔区自然资源局(请注明“规划公示”字样)。

公示网址

https://www.ynlx.gov.cn/zfxxgk_lxq_zrzyj/zrzyxx.html

附件

李某兰户私宅建设方案(图纸为公示稿,以最终审核图纸为准)

扫一扫在手机打开当前页面
分享: