政府信息公开
忙令社区卧维安置区李某和户《建设工程规划许可证》批前公示
日期:2021-01-12 17:53 作者:临翔区自然资源局 来源:区自然资源局 浏览:826次 字体:【

临翔区自然资源局批前公示

根据《中华人民共和国城乡规划法》、《云南省城乡规划条例》和《临沧市城乡规划公开公示实施办法》,现将忙令社区卧维安置区李某和户《建设工程规划许可证》进行批前公示。如有异议,欢迎提出意见建议。

项目名称

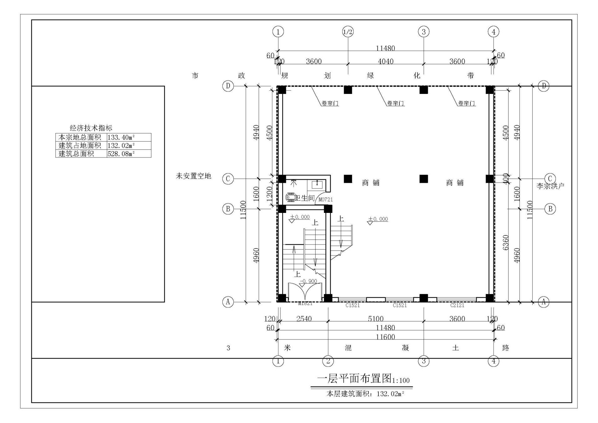
李某和户个人建房建设项目

类型

批前公示

公示类别

建设工程规划许可证

建设单位

李某和

用地位置

卧维安置区,西环线东侧,忙令社区北面

拟建设规模

528平方米

公示期限

7个工作日(2021年1月12日 至2021年1月19日)

联系电话

0883-2153881(国土空间和城乡规划股)

联系邮箱

Lxzrzycxgh@163.com

说明

1.书面反馈(申请)意见发表时间或邮戳日不应超过公示期的最后一天24:00前,逾期视为无效意见。2.书面意见应注明真实联系人姓名、联系方式。3.信件寄往“临沧市临翔区迎宾路113号临沧市临翔区自然资源局(请注明“规划公示”字样)。

公示网址

http://www.ynlx.gov.cn/lxqrmzf/lxqrmzf/zdlygk74/gtzyxxgkzl/cxghgkgs/pqgs/index.html

附件

李某和户个人建房建设方案

(图纸为公示稿,以最终审核图纸为准)

扫一扫在手机打开当前页面
分享: